
- 価格
- 2,090万円
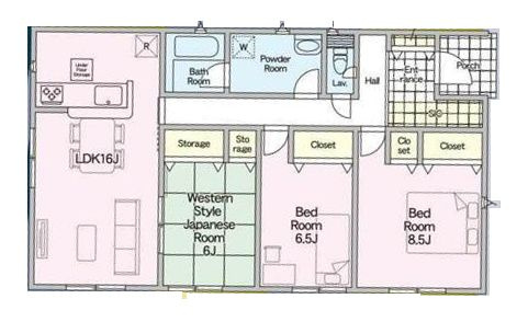
- 間取り
- 3LDK
- 土地面積
- 203.08㎡
- 建物面積
- 88.29㎡
- 築年月
- 2025年12月(新築)
現地見学会
- ※事前に必ずお問い合わせください
- ~事前にお問合せ下さい(営業時間9:00~19:00)~
※今から見たい、当日予約のお客様は下記番号までご連絡下さい。
◆0296-45-8321◆
スマートフォンの方は下部電話ボタンより掛けることも可能です。
◆◇見学を希望されるお客様へ◇◆
まずはご覧のホームページよりお問合せ下さい。
その際、ご希望の日時をお知らせ頂けるとスムーズです。
↓
弊社スタッフから折り返しのご連絡を致します。
↓
現地見学を行いその他物件情報や住宅購入の疑問解消を致します。
希望条件など固まっていなくても大丈夫です!
※建築中の場合は近隣の完成現場をご案内させて頂きます。
【日進ホームってどんな会社?】
◆メリットもデメリットも正直にお伝え致します!
◆やりとりは全てメールやLINEでご対応できます。
◆物件情報を即お届け!(メール、LINE、FAX、郵送も可能)
◆本店はJR東北本線 小山駅から徒歩4分!駐車場も完備しております。
◆住宅ローンのご相談もお任せ下さい!スタッフ全員実績豊富!
◆女性スタッフも多数在籍!
◆お子様連れでも安心!
物件の特徴
-
バストイレ別
-
TVモニタ付きインターホン
-
カウンターキッチン
-
浴室乾燥機
セールスポイント
《全2棟》暮らしやすく考えられた間取り!ツルハドラッグまで徒歩約2分で便利な立地!制震装置搭載の安心安全な造りのお家です!
ポイント
担当者のコメント
基本情報
- 販売戸数
- 2戸
- 総戸数
- 2戸
- 間取り / 詳細
- 3LDK
LDK 16.0帖 1室/和室 6.0帖 1室/洋室 8.5帖 1室/洋室 6.5帖 1室
- 向き
- 南
- 建物面積(坪数)
- 88.29㎡(26.7坪)
- 土地面積(坪数)
- 203.08㎡(61.43坪)
- 建ぺい率 /
容積率 - 60%/200%
- 築年月
- 2025年12月(新築)
- 駐車場 /
月額料金 - 有(2台) 0円
- 土地権利
- 所有権
- 土地
(敷金 / 保証金) - - / -
- 建物構造
- 木造 / 1階建
- 傾斜地部分面積
- -
- 路地状敷地
- -
- 私道負担面積
- -
- セットバック
- -
- 高圧線下面積
- -
- 施工会社
- -
- 用途地域
- 第一種住居
- 地目 / 地勢
- 宅地 / 平坦
- 接道状況
- 一方(東 公道 8.8m 間口 9.4m)
- 国土法届出要否
- 不要
- 都市計画
- 市街化区域
- 総区画数 /
販売区画数 - 2区画/2区画
- 現況
- 完成済み
- その他
法令上の制限 - -
- 取引態様
- 仲介
- 引渡し
- 即時
- 取引条件の
有効期限 - 2026年02月20日
設備条件
- 設備条件
-
- 陽当り良好 / 現地見学会 / プロパンガス / 公営水道 / 公共下水 / 電気有 / 駐車2台可 / ガスコンロ / コンロ2口以上 / システムキッチン / カウンターキッチン / コンロ3口 / バス・トイレ別 / 追焚機能浴室 / 浴室乾燥機 / 温水洗浄便座 / 洗髪洗面化粧台 / トイレ2ヶ所 / 浴室1坪以上 / 収納豊富 / TVモニタ付インターホン / 複層ガラス / ディンプルキー
- 設備(その他)
-
-
-
その他
- 物件番号
- 98133415
- 管理コード
- 43558
- 建築確認番号
- 第25UDI1W建05813号
- 情報更新日
- 2026年02月13日
- 次回更新予定日
- 2026年02月20日
- 取扱会社
-
- 株式会社日進ホーム
- 栃木県小山市城山町2丁目9-16 - 2階
- TEL:0285-38-7511
- 国土交通大臣 (2) 第9176号
- (公社)栃木県宅地建物取引業協会、(公社)首都圏不動産公正取引協議会、Heartful 23 会員
- 備考
- ※宅地内に電柱及び支線が入る場合があります
周辺施設
-
ドラッグストア
ツルハドラッグ 黒子店
160m(2分)
-
スーパー
スーパー塚田
698m(9分)
-
郵便局
黒子郵便局
830m(11分)
-
総合病院
大圃病院
1541m(20分)
-
小学校
関城東小学校
1640m(21分)
-
コンビニエンスストア
セブンイレブン 筑西梶内店
1706m(22分)
-
中学校
関城中学校
2779m(35分)
-
スーパー
TAIRAYA関本店
5100m(64分)
支払いシミュレーション
- 月々の支払額
- 9.6円
- 購入希望物件価格
-
万円
- 頭金
-
万円
- 金利
-
%
- 返済額(ボーナス1回分)
-
万円
- 返済期間
-
年
※ボーナスは自動で年2回分で計算されます。
近隣の物件
筑西市井上 第1 1号棟
2,090万円
-
3LDK(88.29㎡)
1号棟は平屋建ての3LDK!2号棟は各居室6帖以上の広々4LDK!
ツルハドラッグまで徒歩約2分ほどで、お買い物安心の立地です!ぜひお気軽にお問合せ下さい!